ST. AUGUSTINE, Fla — Habitat for Humanity of St. Augustine/St Johns County (Habitat St. Johns) purchased a new property and will develop its largest affordable housing community in its 33-year history.
The new neighborhood will vitalize a 32-acre parcel off Duval Street adjacent to the wonderful Solomon Calhoun Community Center. Future Habitat homeowners will have walkable access to ball fields, a swimming pool, fitness classes, and sports and activities in the gymnasium.
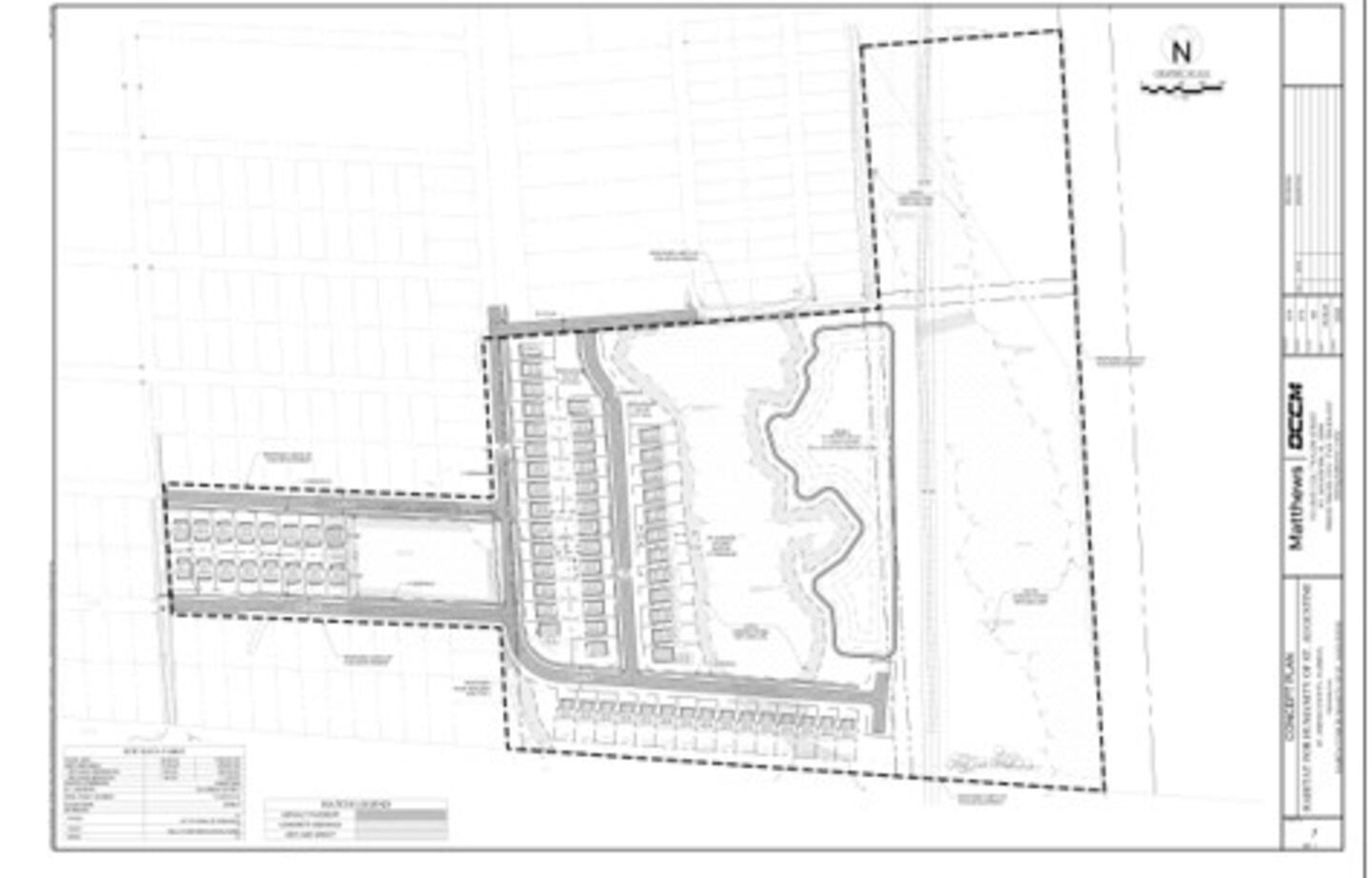
The new Habitat St. Johns property is 32 acres, roughly half of which will become the future home to 74 individuals and families. The rest of the property will remain protected wetlands, retention ponds, a wildlife refuge, and may include a passive park for residents. Construction is scheduled to begin in 2027.
“This is a historic moment for Habitat St. Johns,” states Executive Director Malinda Everson. “The purchase of this 32-acre property marks our largest neighborhood development to date, with 74 affordable homes planned for hardworking families in our community. This neighborhood will provide not only homes, but also stability and opportunity for generations to come. We are proud to continue expanding our mission and building a stronger, more inclusive St. Johns County.”
The new community, yet to be named, will feature affordable single-family homes in various styles and sizes, including 2-, 3-, and 4-bedroom options. The site plan is being finalized, and work on home designs will begin soon.
Habitat St. Johns builds in partnership with individuals and families earning 30 – 120% of the Area Median Income, ensuring that people across various income levels can purchase homes that fit within their budget without compromising quality or location. Habitat homeowners enjoy housing costs that do not exceed 30% of their income.
▶ Listen to Jacksonville’s Morning News Interviews
Click here to download our free news, weather and traffic app. And click here to subscribe to our daily 3 Big Things newsletter.
©2025 Cox Media Group















